



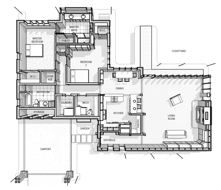
This mid-century modern two bed, two bath single level house is the perfect country retreat for a small family. Design emphasis was placed on the efficient plan which draws inspiration from many of Frank Lloyd Wright designed homes with additional comforts for the modern lifestyle.
The design intent of this house is to maximize views of nature and allow for beautiful but controlled natural lighting into the space. This makes for a comfortable, well connected home.






The Wren House


Area: 1,200sf
2 Bed 2 Bath
Full sized Kitchen
Walk in skylit pantry
Larger living room
Fireplace
Unique Built in shelving and storage
Laundry room
Cubby space at entry
Radiant floors
Courtyard
Carport
Exterior storage






Features & Amenities
Front Elevation
Living
Rear Elevation
Kitchen
Entry


